19 ACACIA CRESCENT RENMARK SA 5341


Under Offer


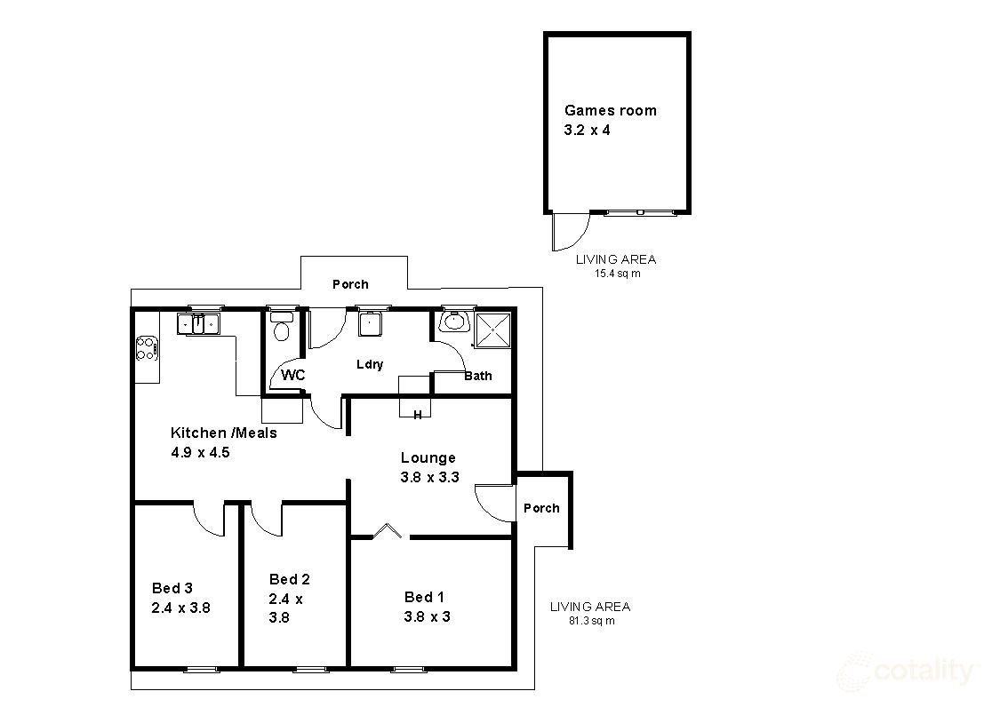
3 Beds | 1 Bath

New Price: $345,000!

Smart Investment or Affordable First Home

Ideally located just minutes from Renmark Square, schools, and local eateries, this three-bedroom duplex offers an affordable and low-maintenance opportunity for investors or first home buyers alike.

Step inside to find a neat and functional layout featuring an eat-in kitchen with gas cooking, a separate lounge for relaxed living, and year-round comfort thanks to split system air conditioning. Each of the three bedrooms are well-sized.

Outside, the front yard is low-maintenance landscaping, including wood chips for a tidy finish. The rear yard offers additional space and includes a lined shed - perfect for storage, hobbies, or as a flexible utility area.

Whether you're a seasoned investor or entering the market for the first time, this property is well-positioned to deliver returns, with a current lease in place till April 2026 at $240 per week. Its central location and low upkeep make it an attractive option for tenants or owners seeking a practical lifestyle.

This is a solid, no-fuss property with plenty of upside - ready for the next chapter.

RLA 321321

AGENT DETAILS

   

RESOURCES

Map >
Enquire Now >

PROPERTY FEATURES

Bedrooms
3
Bathrooms
1

KEY DETAILS
Property Type
House
Suburb
RENMARK
Land Area
516 squareMeter
Building Area
81 squareMeter

NEXT INSPECTIONS
   Please contact the agent.

LETTER OF OFFER

Download Letter of Offer
SHARE
   
EMAIL THE AGENT
Please Enter your Name is required.
Email Address is required.
Email Address Email is not valid.
Please Enter your Phone Number is required.

NOTE: Do Not Alter These Fields:

* Indicates required field